Bâtiment C – IEPA

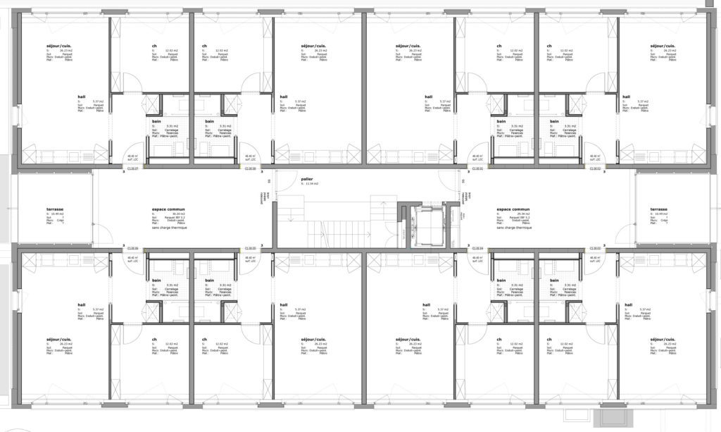
48 logements HLM/LUP de 2,5 pièces

Type

Ces logements sont des 3 pièces, comprenant une chambre, et une grande pièce « cuisine ouverte sur le salon ».

La salle de bain ne propose pas de baignoire (seulement douche, seuil adapté).
Les seuils, encadrements de porte, etc. sont adaptés à la spécificité de l’immeuble (IEPA)

Aménagements intérieurs de base

Les cuisines sont équipées d’évier et robinetterie, réfrigérateur, four, plaques de cuisson, hotte à recyclage, écoulement et prise pour le lave-vaisselle, et prise 220/240W (arrivée tube/boîte vide).

Chauffage

Chauffage hydraulique basse température au sol pour tous les logements.

Balcon

Les appartements de cet immeuble (C – IEPA) ne proposent pas de balcon/loggia.

Buanderies communes

Tous les immeubles locatifs disposent de buanderies communes (lave-linge et séchoir).

Locaux pour vélos

Des locaux fermés pour cycles et poussettes sont situés en sous-sol.

Caves et parking

Chaque appartement dispose d’une cave, ainsi qu’une place ou box pour parking, dans les sous-sols.

Divers

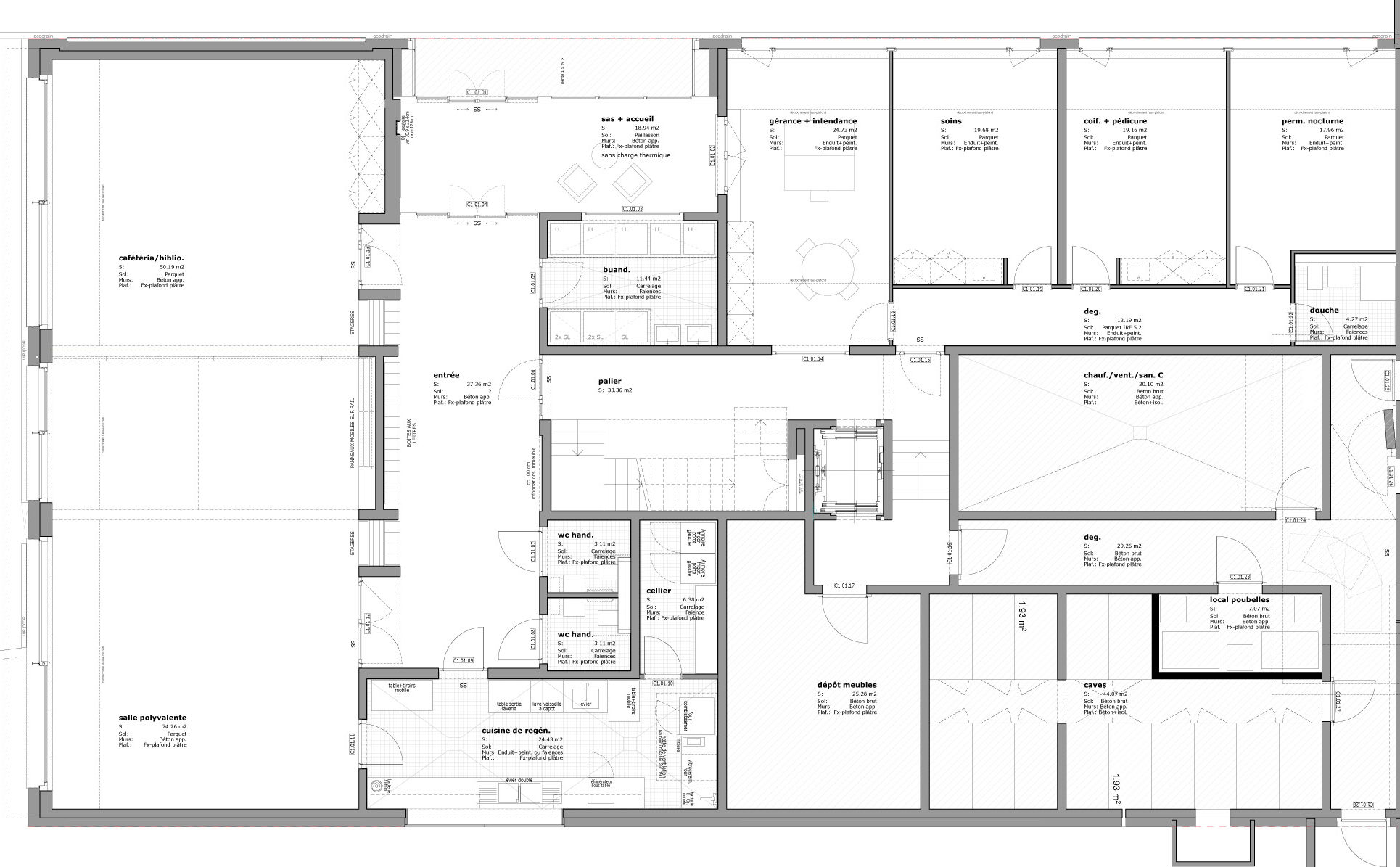
L’encadrement du IEPA prévoit notamment un restaurant, une permanence médicale, des salles et terrasses communes.

Loyers

CHF 1’185.- par mois hors charges (ce montant est communiqué à titre indicatif, il est sujet à modification et non contractuel)
Prérequis pour l’admission : avoir vécu les 2 dernières années continues à Genève

REZ-DE-CHAUSSEE

Télécharger le Plan